Commercial Space for Rent (ML 413)
Added: April 14, 2026
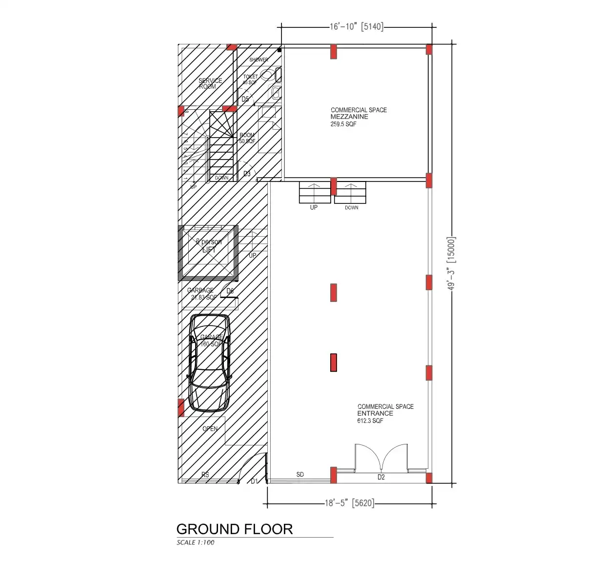
Here’s a great opportunity to set up your business in one of the most active spots in Villimale’. This 1,215 sqft commercial space spans three levels—Basement, Ground and Mezzanine floors—and sits right in front of the Children’s Park. With steady foot traffic and excellent visibility, it’s ideal for a retail store, café, office or studio.
Located in Burevi Goalhi, the property is easily accessible by road and is just a short ferry ride from Male'. The layout offers plenty of flexibility: the ground floor is perfect for customer-facing activities, the mezzanine can serve as extra workspace or a display area and the basement provides ample room for storage or back-end operations.
If you are interested, please give us a call at +960 7792480, send a message to any of our social media pages, or leave a comment below with your contact number.