Fully Furnished 3 BR for Rent (HM 726)
Added: April 22, 2026
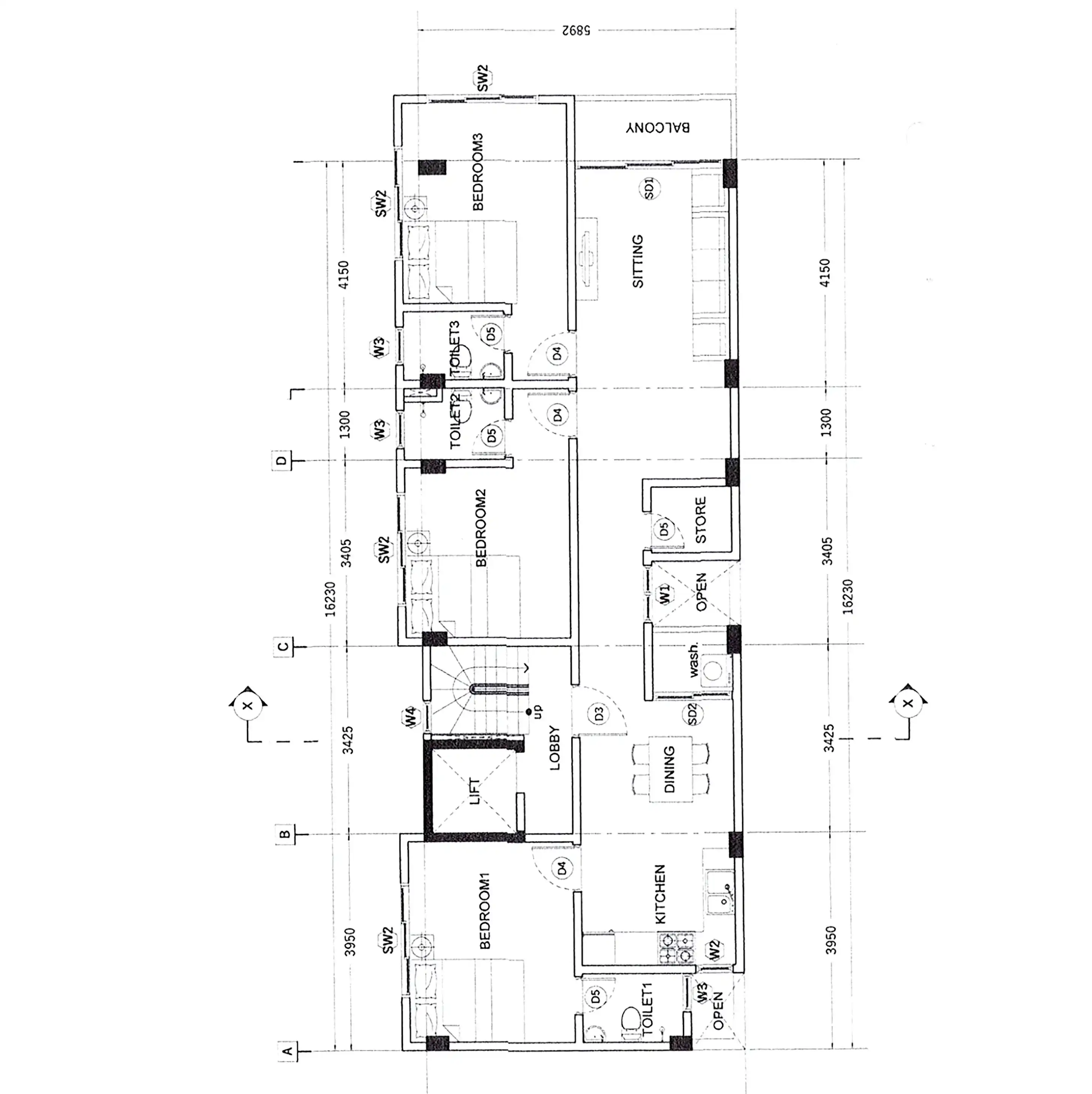
Three separate 3-bedroom apartments with attached bathrooms are available for rent on the 3rd, 4th and 5th floors of a residential building near Static Company in Fareedhee Magu, Maafannu. Please note that the building is still under construction, and works will continue throughout this year and the next. The lift will only be installed once construction is completed, expected by the end of 2026.
The apartments require minor renovation works. Any renovation or finishing works are to be undertaken by the tenant at their own costs. To support this, the landlord is willing to provide either a one-month grace period or a discounted first month’s rent. No additional allowances will be provided, and tenants must understand and accept this condition when deciding to lease.
Rental prices are reduced due to the absence of a lift, which will only be operational after late 2026.
⚠️ Disclaimer: These units are part of an unfinished building. Construction will continue throughout this year and next year. Tenants should be prepared for ongoing works and accept that renovation inside the apartment is their responsibility, with only the first month’s grace period or discount provided by the landlord.
📞 If you are interested, please give us a call at +960 7792480, send a message to any of our social media pages, or leave a comment below with your contact number.
Added: April 22, 2026
Added: April 18, 2026